News information新闻动态

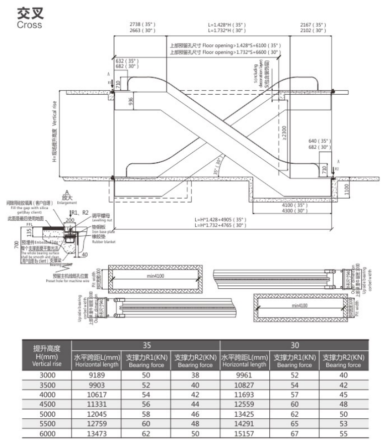
交叉布置安装的购物车电梯土建示意图

下图为中海三菱电梯交叉布置安装的购物车电梯土建示意图,如有疑问可查看www.zhsldt.com更多内容或直接致电我们的技术顾问:13616720921

电 话
地 图
分 享
邮 件